Description
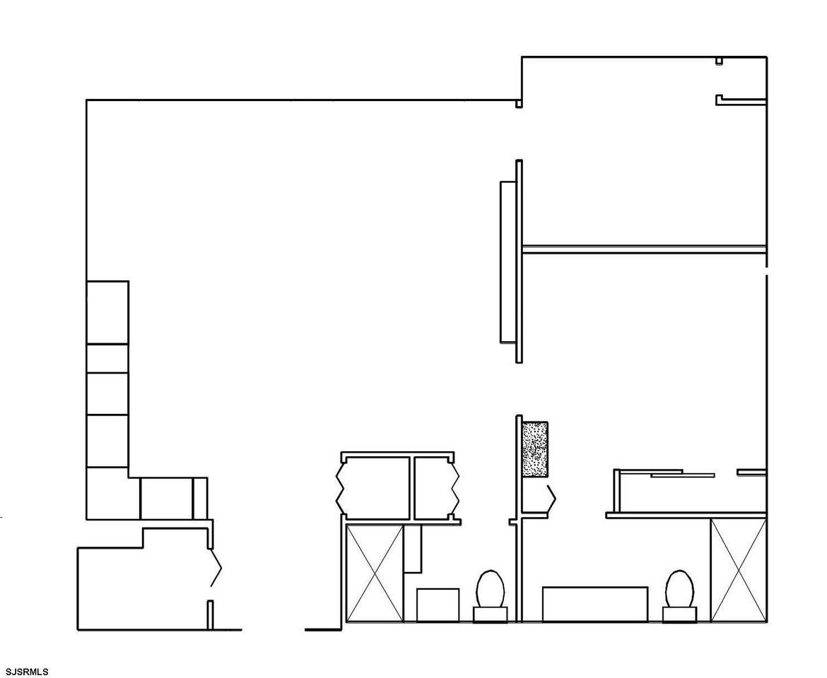
Welcome to 9600 Atlantic Ave, Margate’s premier beachfront high-rise building that’s known for its meticulous well-kept lobby, community room, covered garage parking, ocean front pool and gym offering you all the amenities you could want in a beach home. Terra Vista Builders has taken the unit down to the original concrete floors and has begun remaking the space with all new framing and a new electrical panel, wiring and plumbing lines to allow for a fully renovated contemporary design with 2 bedrooms and 2 full baths. The new floorplan will have a custom kitchen with white shaker cabinets, quartz countertops with waterfall edges, full quartz backsplash and stainless-steel appliances that opens to the main living area centered around a 7’ wide floor-to-ceiling split-face marble ledgestone fireplace. Three separate built-in storage closets are accessible within the main living area to allow for ample storage of all of your beach items, and a sliding door opens up to a large bay view balcony with that sits high above surrounding buildings allowing for unobstructed views all the way from Atlantic City to Ocean City. Accent walls and coffered ceilings add custom touches throughout the unit and every ceiling will have new recessed lighting with separate dimmer switch controls in each room. Luxury engineered vinyl plank flooring covering the bedrooms, foyer, kitchen and main living area is waterproof and scratch & dent resistant. Both full bathrooms will be wrapped in modern porcelain tile complete with frameless glass door showers and the larger master bathroom will have a double sink vanity and recessed medicine cabinet mirror with integrated touch screen lighting, clock and defogging options. The new bedrooms will each have their own built-in closets with the master bedroom having a separate additional linen closet and both will be serviced by a new direct vent HVAC unit. Photos shown in listing are of other similar units the builder has completed in the building. Delivery of the finished unit 1711 is expected around March 1, 2026.
-
2BEDS
-
N/AACRES
-
2BATHS
-
01/2 BATHS
School Ratings & Info
Description
Welcome to 9600 Atlantic Ave, Margate’s premier beachfront high-rise building that’s known for its meticulous well-kept lobby, community room, covered garage parking, ocean front pool and gym offering you all the amenities you could want in a beach home. Terra Vista Builders has taken the unit down to the original concrete floors and has begun remaking the space with all new framing and a new electrical panel, wiring and plumbing lines to allow for a fully renovated contemporary design with 2 bedrooms and 2 full baths. The new floorplan will have a custom kitchen with white shaker cabinets, quartz countertops with waterfall edges, full quartz backsplash and stainless-steel appliances that opens to the main living area centered around a 7’ wide floor-to-ceiling split-face marble ledgestone fireplace. Three separate built-in storage closets are accessible within the main living area to allow for ample storage of all of your beach items, and a sliding door opens up to a large bay view balcony with that sits high above surrounding buildings allowing for unobstructed views all the way from Atlantic City to Ocean City. Accent walls and coffered ceilings add custom touches throughout the unit and every ceiling will have new recessed lighting with separate dimmer switch controls in each room. Luxury engineered vinyl plank flooring covering the bedrooms, foyer, kitchen and main living area is waterproof and scratch & dent resistant. Both full bathrooms will be wrapped in modern porcelain tile complete with frameless glass door showers and the larger master bathroom will have a double sink vanity and recessed medicine cabinet mirror with integrated touch screen lighting, clock and defogging options. The new bedrooms will each have their own built-in closets with the master bedroom having a separate additional linen closet and both will be serviced by a new direct vent HVAC unit. Photos shown in listing are of other similar units the builder has completed in the building. Delivery of the finished unit 1711 is expected around March 1, 2026.
© 2026 South Jersey Shore Regional MLS. All rights reserved. IDX information is provided exclusively for consumers' personal, non-commercial use and may not be used for any purpose other than to identify prospective properties consumers may be interested in purchasing. Information is deemed reliable but is not guaranteed accurate by the MLS or The Dwyer Group | Goldcoast Sotheby's International Realty. Properties marked with the Broker Reciprocity icon or thumbnail icon (a small house) are provided courtesy of the South Jersey Shore Regional MLS Broker Reciprocity Database. Data last updated 2026-01-19T06:49:58.89.

Listing information © 2026 South Jersey Shore Regional MLS.