Description
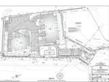
Once in a Lifetime Prime Waterfront Development Opportunity in Cape May An exceptional opportunity to develop 0.7 acres of waterfront property on Cape May’s Yacht Ave. This rare offering includes approved plans for a seven-townhome condominium association with a small marina, creating an exclusive waterfront community in one of Cape May’s most desirable locations. Situated in a highly walkable location, this property offers convenient access to the Marina District, where you’ll find some of Cape May’s most popular restaurants, including Lucky Bones, The Lobster House, and Mayer’s. Just a short distance away, explore the charm of Historic Cape May, known for its Victorian homes, boutique shopping, and pristine beaches. Cape May is a premier destination for boaters and coastal enthusiasts, providing direct harbor access and a vibrant seaside atmosphere. Whether you’re an investor, developer, or visionary buyer, this is a rare opportunity to bring a luxury waterfront project to life. For those seeking to create their own waterfront masterpiece, this property also presents the unique opportunity to design a private luxury estate with unparalleled harbor views. Imagine a custom-built home or two with expansive decks, private docks, and direct access to Cape May’s premier boating waters—a haven for yachting, fishing, and waterfront living at its finest. Whether as a multi-unit development or a one-of-a-kind private retreat, this rare waterfront property is a blank canvas ready for your vision: Highlights – Dig Ready for 7 townhomes, 1 Existing renovated Historic Home, 17- 23 slips, 7 marina parking, marina bathroom room, 7 overflow residential parking, Garages for townhomes. Need a builder we can supply a fantastic local builder who has been involved from the beginning on this project.
-
0BEDS
-
N/AACRES
-
0BATHS
-
01/2 BATHS
School Ratings & Info
Description
Once in a Lifetime Prime Waterfront Development Opportunity in Cape May An exceptional opportunity to develop 0.7 acres of waterfront property on Cape May’s Yacht Ave. This rare offering includes approved plans for a seven-townhome condominium association with a small marina, creating an exclusive waterfront community in one of Cape May’s most desirable locations. Situated in a highly walkable location, this property offers convenient access to the Marina District, where you’ll find some of Cape May’s most popular restaurants, including Lucky Bones, The Lobster House, and Mayer’s. Just a short distance away, explore the charm of Historic Cape May, known for its Victorian homes, boutique shopping, and pristine beaches. Cape May is a premier destination for boaters and coastal enthusiasts, providing direct harbor access and a vibrant seaside atmosphere. Whether you’re an investor, developer, or visionary buyer, this is a rare opportunity to bring a luxury waterfront project to life. For those seeking to create their own waterfront masterpiece, this property also presents the unique opportunity to design a private luxury estate with unparalleled harbor views. Imagine a custom-built home or two with expansive decks, private docks, and direct access to Cape May’s premier boating waters—a haven for yachting, fishing, and waterfront living at its finest. Whether as a multi-unit development or a one-of-a-kind private retreat, this rare waterfront property is a blank canvas ready for your vision: Highlights – Dig Ready for 7 townhomes, 1 Existing renovated Historic Home, 17- 23 slips, 7 marina parking, marina bathroom room, 7 overflow residential parking, Garages for townhomes. Need a builder we can supply a fantastic local builder who has been involved from the beginning on this project.
Related Properties
Listing information © 2026 Cape May County Association of REALTORS® Multiple Listing Service. Information is deemed reliable but is not guaranteed accurate by the MLS or The Dwyer Group | Goldcoast Sotheby's International Realty. IDX information is provided exclusively for consumers' personal, non-commercial use and may not be used for any purpose other than to identify prospective properties consumers may be interested in purchasing. Data last updated 2026-01-20T23:49:32.74.
